Bramanta Fajar
Structural Engineer
This page is providing the best of Bramanta's structural works
(last update: May 2023)

SketchUp Model

Structure Detailing

Cut Plan

SAP2000 Model
Al-Muttaqin Mosque
In 2021, a mosque in Pasuruan, East Java, was planned to be expanded eastward. The asymmetrical column layout was a challenge in this 2-storey building project.
At-Taqwa Mosque
A mosque in Lamongan, East Java, was planned to be rebuilt with a more immense capacity. The planning process began in 2022, and resulting long-span portal in design. The results of structural analysis played an important role in architectural adjustment.

SketchUp Model

Domes Location

SAP2000 Model

First Floor Layout

SketchUp Model

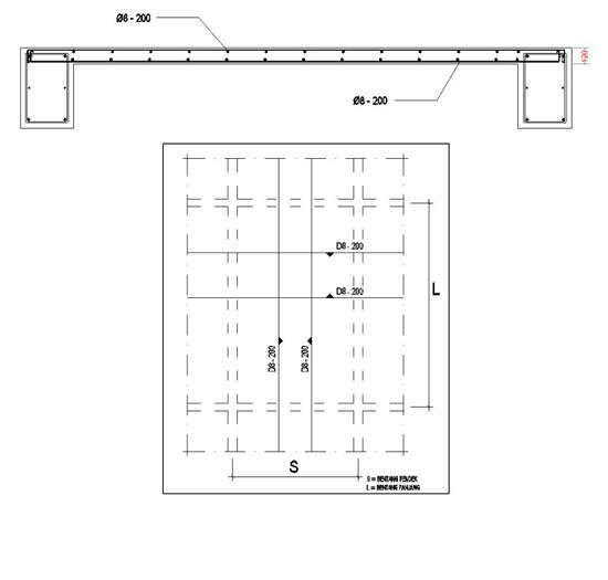
Structure Detailing (beam)

Structure Detailing (slab)

SAP2000 Model
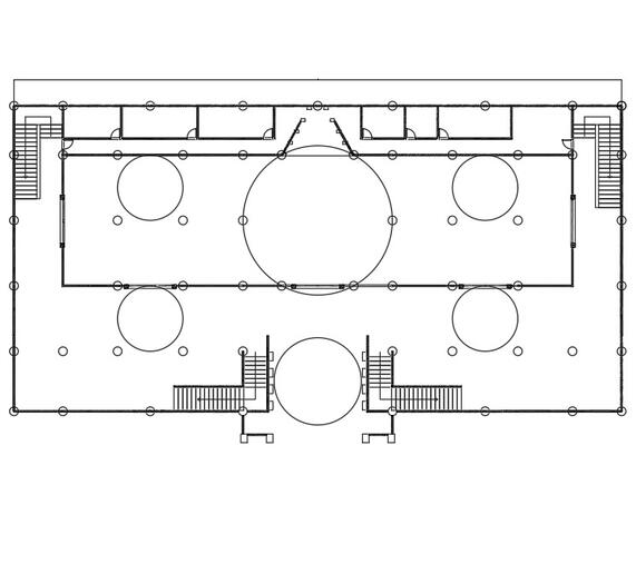
Jogonegoro Mertoyudan Mosque
In 2022, a mosque in Sleman, DIY, was designed with simple layout and symmetrical story. Little adjustment was suggested to meet the proper structure.
Kradenan Sportcenter
A sportcenter located in Magelang, Cental Java, was planned in 2023. In this type of building, the influence of wind loads was taken into consideration of the roof design

SketchUp Model

SAFE model (foundation design)

Roof Truss DED

SAP2000 Model

Private Flathouse (Foundation Design)
A foundation group were designed for a privately owned commercial building in 2023. drilled shaft piles were used in the design to withstand the loads of this 3-storey building.
Current Research
Special Truss Moment Frame (STMF) as one of seismic load resisting system for steel structure is the main topic. The goal is to be able to utilize it in long span structure

